Property Search
2860 S Seacrest BoulevardBoynton Beach, FL 33435
Due to the health concerns created by Coronavirus we are offering personal 1-1 online video walkthough tours where possible.




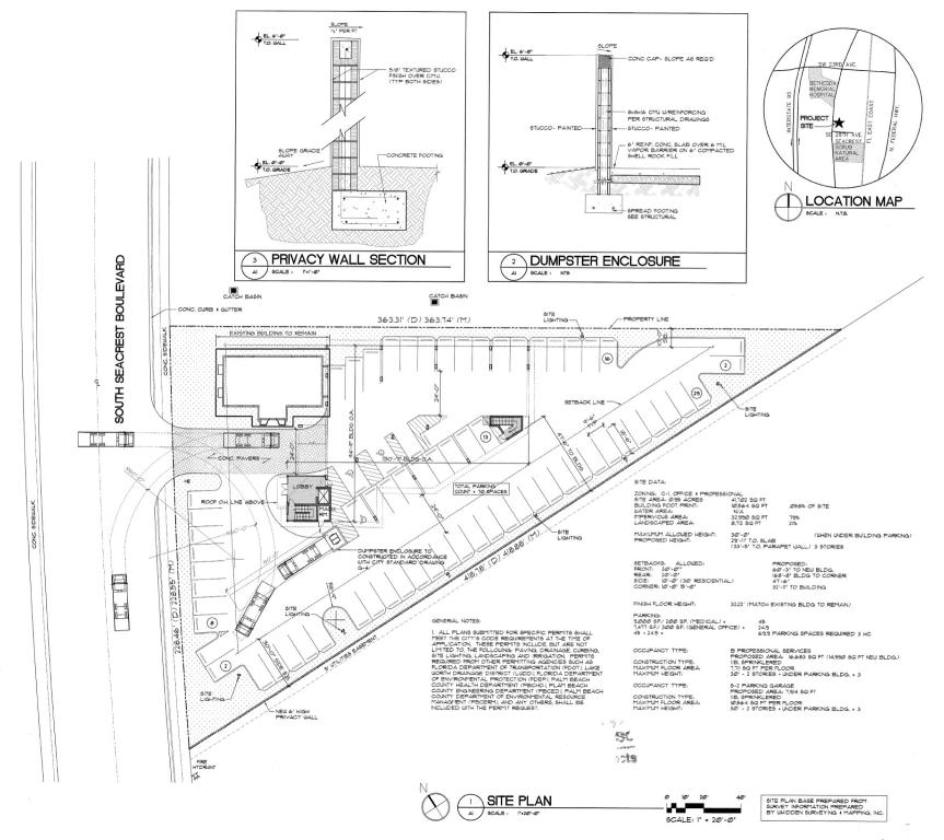
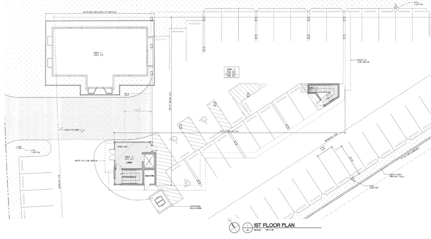
Gator Commercial Real Estate is pleased to present for sale 2860 S Seacrest Boulevard - Unit B, a vacant development site located within the Seacrest Green Professional Condominium in Boynton Beach, Florida. The property is positioned along the well-established Seacrest medical corridor, across street from Bethesda Hospital East, surrounded by a critical mass of healthcare, wellness, and professional users. Architectural renderings and conceptual plans envision a three-story, ±15,000 square foot medical office building designed to complement the surrounding professional campus. The design proposes a first-floor lobby and parking interface, 7,711 SF on the second floor, and 6,550 SF on the third floor with balconies and architectural features enhancing visibility and tenant appeal. Condominium Unit Area: 8,800 SF (0.202 acres) Common Area Interest: 83.87 % of 0.806 acres (35,123 SF) Total Economic Site Area: Ü 0.968 acres (43,923 SF) Topography: Cleared and level
| 3 months ago | Listing first seen on site | |
| 3 months ago | Listing updated with changes from the MLS® |
All listings featuring the BMLS logo are provided by BeachesMLS, Inc. This information is not verified for authenticity or accuracy and is not guaranteed. Copyright © 2026 BeachesMLS, Inc. (a Flex MLS feed)
Last checked: 2026-03-02 06:48 AM UTC


Did you know? You can invite friends and family to your search. They can join your search, rate and discuss listings with you.