Property Search
1523 NE 17th WayFort Lauderdale, FL 33304
Due to the health concerns created by Coronavirus we are offering personal 1-1 online video walkthough tours where possible.




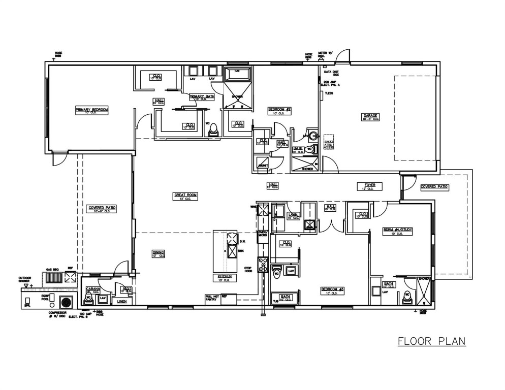
Under Construction – Delivery February 2026! Introducing KH2 Development’s newest high-quality signature residence in sought after Poinsettia Heights. This stunning one-story new construction offers 4 bedrooms and 4.5 baths in a newly designed open-concept floor plan with custom finishes throughout. Highlights include 10 to 12 foot ceilings, designer custom cabinetry, and high end Viking appliances that elevate everyday living to a chef-level experience. This residence flows seamlessly from a bright, airy interior to an entertainer’s backyard oasis, featuring a sparkling pool and a covered porch with a built-in BBQ for gatherings or a day of relaxation. Thoughtful details and premium materials define every room, reflecting KH2 Development’s commitment to quality and modern luxury.
| 5 months ago | Listing first seen on site | |
| 5 months ago | Listing updated with changes from the MLS® |
All listings featuring the BMLS logo are provided by BeachesMLS, Inc. This information is not verified for authenticity or accuracy and is not guaranteed. Copyright © 2026 BeachesMLS, Inc. (a Flex MLS feed)
Last checked: 2026-02-07 04:08 AM UTC


Did you know? You can invite friends and family to your search. They can join your search, rate and discuss listings with you.